modelo toledo

MOBIL HOME TOLEDO

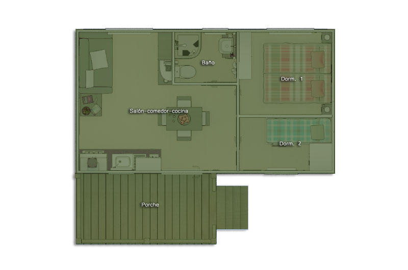
Modelo de un módulo. Dispone de 26,85 m2 de superficie útil con salón-comedor-cocina, dos dormitorios, un baño y un porche.

This content requires HTML5/CSS3, WebGL, or Adobe Flash Player Version 10 or higher.

TOLEDO 360º

Navegue por el interior del modelo utilizando el

ratón o despliegue el panel y utilice los cursores.

El modelo es una recreación que puede diferir del

modelo final.

ACABADOS INTERIORES PERSONALIZADOS

Alhambra Mobile Homes

MOBILE HOMES IN SPAIN

Diferentes estilos a elegir.

Desde un estilo rústico, logrando un ambiente relajado que gira entorno a la naturaleza, hasta un estilo moderno donde se busca la simplicidad de las formas predominando las líneas rectas.

Haga realidad la casa de sus sueños!!